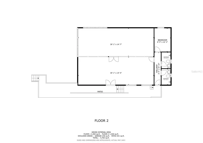
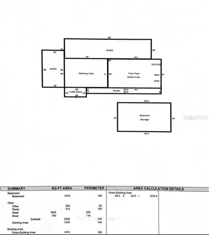
Nestled in the misty, cool mountains of Adjuntas, Bosque Tanama is a 33.45-acre estate where natural beauty and heritage meet opportunity. Home to the highest-scoring coffee ever to come out of Puerto Rico—with an exceptional 92-point badge—this property lies just 49 miles from San Juan and offers a serene mountain retreat with sweeping views, lush forests, fruit trees, and a natural spring-fed pool. While the estate is celebrated for its historic, high-quality coffee production, it also features vast open areas ideal for future agricultural ventures or eco-tourism projects. The rolling hills, open landscapes, and rich biodiversity create a peaceful sanctuary that offers a rare combination of tranquility and accessibility. At the heart of the estate is a two-level home that blends traditional Puerto Rican Mountain architecture with warm, natural finishes. The upper level, wrapped entirely in wood with high ceilings and exposed beams, includes two bedrooms, a full kitchen, and a wrap-around balcony that seems suspended between sky and mountain. Here, mornings begin with mist drifting over the coffee fields, afternoons glow with golden light, and nights reveal a sky filled with stars that feel within reach. The first level offers a practical layout with one bedroom, one bathroom, and a full kitchen, along with direct access to terraces, gardens, and walking paths—ideal for guests, extended family, or potential rental opportunities. Every window frames a different view of the surrounding greenery, coffee fields, and mountains, making it a home that feels intimately connected to its landscape. The home offers a GLA of 1, 516 sq ft (1, 895 sq ft total). A standout feature of Bosque Tanama is its fully licensed, fully equipped coffee processing facility, ready to operate immediately. This prominent facility measures 4, 783 sq ft and includes a roaster, huller, depulper, dryer, storage areas, and a covered loading structure—all with permits and certifications in place. The heritage and proven quality of the farm’s coffee elevate the value of this turnkey operation, making it a rare asset in Puerto Rico’s coffee industry. The land has proven agricultural potential, with ample space for fruit trees, cacao, vanilla, or other specialty crops, as well as walkable internal roads and open areas perfect for future development. Bosque Tanama is more than a property; it’s a lifestyle. Known as “The Switzerland of Puerto Rico, ” Adjuntas offers a cool, temperate climate, hiking trails, waterfalls, artisan coffee shops, and vibrant local culture. Despite its peaceful isolation, the estate is just a short drive from San Juan, combining seclusion with convenience. Every sunrise over the misty fields, every golden sunset on the balcony, and every star-filled night reflects the estate’s magic, making it a rare canvas for private living, hospitality projects, or reviving Puerto Rico’s storied coffee tradition. With its two-level mountain home, fertile land, breathtaking natural surroundings, and internationally recognized 92-point coffee heritage, Bosque Tanama is a unique opportunity to embrace mountain living while exploring the full potential of one of Puerto Rico’s most beautiful and productive landscapes.
Compare listings
ComparePlease enter your username or email address. You will receive a link to create a new password via email.
array:2 [ "RF Query: /Property?$select=ALL&$top=20&$filter=((StandardStatus eq 'Active' and StateOrProvince eq 'PR' and PropertyType in ('Residential', 'Residential Income', 'Land', 'Business Opportunity', 'Commercial Sale') and ListPrice ge 300000) OR ( StandardStatus eq 'Active' and StateOrProvince eq 'PR' and PropertyType in ('Residential Lease', 'Commercial Lease' ) and ListPrice ge 3000)) and ListingKey eq 'MFR776154142' AND InternetEntireListingDisplayYN eq true&$feature=ListAgentMlsId in ('743575075','')&$expand=Media&$count=true" => array:2 [ "RF Response" => Realtyna\MlsOnTheFly\Components\CloudPost\SubComponents\RFClient\SDK\RF\RFResponse {#2557 +items: array:1 [ 0 => Realtyna\MlsOnTheFly\Components\CloudPost\SubComponents\RFClient\SDK\RF\Entities\RFProperty {#2555 +post_id: "506003" +post_author: 1 +"ListingKey": "MFR776154142" +"ListingId": "PR9117667" +"PropertyType": "For Sale" +"PropertySubType": "Farm" +"StandardStatus": "Active" +"ModificationTimestamp": "2026-02-10T13:57:09Z" +"RFModificationTimestamp": "2026-02-10T14:02:01Z" +"ListPrice": 945000.0 +"BathroomsTotalInteger": 2.0 +"BathroomsHalf": 0 +"BedroomsTotal": 3.0 +"LotSizeArea": 0 +"LivingArea": 1516.0 +"BuildingAreaTotal": 1895.0 +"City": "Adjuntas" +"PostalCode": "00601" +"UnparsedAddress": "Sr 526 Bosque Tanama, Adjuntas, Puerto Rico 00601" +"Coordinates": array:2 [ 0 => -66.77611407 1 => 18.21327854 ] +"Latitude": 18.21327854 +"Longitude": -66.77611407 +"YearBuilt": 2015 +"InternetAddressDisplayYN": true +"FeedTypes": "IDX" +"ListAgentFullName": "Alexandra Esteva" +"ListOfficeName": "CORCORAN PUERTO RICO" +"ListAgentMlsId": "743511528" +"ListOfficeMlsId": "743511482" +"OriginatingSystemName": "Stellar" +"PublicRemarks": """ Nestled in the misty, cool mountains of Adjuntas, Bosque Tanama is a 33.45-acre estate where natural beauty and heritage meet opportunity. Home to the highest-scoring coffee ever to come out of Puerto Rico—with an exceptional 92-point badge—this property lies just 49 miles from San Juan and offers a serene mountain retreat with sweeping views, lush forests, fruit trees, and a natural spring-fed pool.\r\n \r\n While the estate is celebrated for its historic, high-quality coffee production, it also features vast open areas ideal for future agricultural ventures or eco-tourism projects. The rolling hills, open landscapes, and rich biodiversity create a peaceful sanctuary that offers a rare combination of tranquility and accessibility.\r\n \r\n At the heart of the estate is a two-level home that blends traditional Puerto Rican Mountain architecture with warm, natural finishes. The upper level, wrapped entirely in wood with high ceilings and exposed beams, includes two bedrooms, a full kitchen, and a wrap-around balcony that seems suspended between sky and mountain. Here, mornings begin with mist drifting over the coffee fields, afternoons glow with golden light, and nights reveal a sky filled with stars that feel within reach.\r\n \r\n The first level offers a practical layout with one bedroom, one bathroom, and a full kitchen, along with direct access to terraces, gardens, and walking paths—ideal for guests, extended family, or potential rental opportunities. Every window frames a different view of the surrounding greenery, coffee fields, and mountains, making it a home that feels intimately connected to its landscape. The home offers a GLA of 1,516 sq ft (1,895 sq ft total).\r\n \r\n A standout feature of Bosque Tanama is its fully licensed, fully equipped coffee processing facility, ready to operate immediately. This prominent facility measures 4,783 sq ft and includes a roaster, huller, depulper, dryer, storage areas, and a covered loading structure—all with permits and certifications in place. The heritage and proven quality of the farm’s coffee elevate the value of this turnkey operation, making it a rare asset in Puerto Rico’s coffee industry.\r\n \r\n The land has proven agricultural potential, with ample space for fruit trees, cacao, vanilla, or other specialty crops, as well as walkable internal roads and open areas perfect for future development.\r\n \r\n Bosque Tanama is more than a property; it’s a lifestyle. Known as “The Switzerland of Puerto Rico,” Adjuntas offers a cool, temperate climate, hiking trails, waterfalls, artisan coffee shops, and vibrant local culture. Despite its peaceful isolation, the estate is just a short drive from San Juan, combining seclusion with convenience.\r\n \r\n Every sunrise over the misty fields, every golden sunset on the balcony, and every star-filled night reflects the estate’s magic, making it a rare canvas for private living, hospitality projects, or reviving Puerto Rico’s storied coffee tradition. With its two-level mountain home, fertile land, breathtaking natural surroundings, and internationally recognized 92-point coffee heritage, Bosque Tanama is a unique opportunity to embrace mountain living while exploring the full potential of one of Puerto Rico’s most beautiful and productive landscapes. """ +"Appliances": "Microwave,Range,Refrigerator" +"ArchitecturalStyle": "Cabin" +"BathroomsFull": 2 +"BuildingAreaSource": "Estimated" +"BuildingAreaUnits": "Square Feet" +"CarportSpaces": "6" +"CarportYN": true +"ConstructionMaterials": array:3 [ 0 => "Block" 1 => "Concrete" 2 => "Frame" ] +"Cooling": "None" +"Country": "US" +"CountyOrParish": "Adjuntas" +"CreationDate": "2025-12-01T00:47:27.852952+00:00" +"CumulativeDaysOnMarket": 72 +"DaysOnMarket": 177 +"DirectionFaces": "South" +"Directions": "From San Juan, take PR-22 West and then merge onto PR-52 South toward Ponce. Continue on PR-52 and take Exit 208A toward PR-10 South (Adjuntas/Utuado). Stay on PR-10 for approximately 25 minutes. Then turn right onto PR-135 toward Adjuntas town center. Continue on PR-135 and follow the signs toward Barrio Tanamá. From PR-135, turn onto the local access road for Tanamá and continue straight until you reach the property." +"ExteriorFeatures": "Balcony,French Doors,Garden" +"Flooring": "Ceramic Tile,Terrazzo,Wood" +"FoundationDetails": array:2 [ 0 => "Block" 1 => "Concrete Perimeter" ] +"Furnished": "Unfurnished" +"Heating": "None" +"InteriorFeatures": "Ceiling Fans(s),Eat-in Kitchen,High Ceilings,Open Floorplan,Primary Bedroom Main Floor,PrimaryBedroom Upstairs" +"RFTransactionType": "For Sale" +"InternetAutomatedValuationDisplayYN": true +"InternetEntireListingDisplayYN": true +"LaundryFeatures": array:1 [ 0 => "None" ] +"Levels": array:1 [ 0 => "Two" ] +"ListAOR": "Puerto Rico" +"ListAgentAOR": "Puerto Rico" +"ListAgentDirectPhone": "787-646-3155" +"ListAgentEmail": "[email protected]" +"ListAgentKey": "576199518" +"ListOfficeKey": "571428148" +"ListOfficePhone": "939-478-6028" +"ListOfficeURL": "https://www.corcoran.com/corcoran-puerto-rico/18" +"ListingAgreement": "Exclusive Agency" +"ListingContractDate": "2025-11-28" +"LivingAreaSource": "Estimated" +"LotFeatures": array:5 [ 0 => "Farm" 1 => "Irregular Lot" 2 => "Mountainous" 3 => "Pasture" 4 => "Paved" ] +"LotSizeAcres": 33.45 +"LotSizeSquareFeet": 1457262 +"MLSAreaMajor": "00601 - Adjuntas" +"MlgCanUse": array:1 [ 0 => "IDX" ] +"MlgCanView": true +"MlsStatus": "Active" +"OccupantType": "Vacant" +"OnMarketDate": "2025-11-30" +"OriginalEntryTimestamp": "2025-12-01T00:44:22Z" +"OriginalListPrice": 1200000 +"OriginatingSystemKey": "776154142" +"OtherEquipment": array:1 [ 0 => "Generator" ] +"OtherStructures": array:1 [ 0 => "Other" ] +"Ownership": "Fee Simple" +"ParcelNumber": "239-000-003-02-901" +"PatioAndPorchFeatures": array:1 [ 0 => "None" ] +"PhotosChangeTimestamp": "2025-12-01T13:40:09Z" +"PhotosCount": 33 +"PreviousListPrice": 1200000 +"PriceChangeTimestamp": "2026-02-10T13:56:28Z" +"RoadSurfaceType": array:1 [ 0 => "Asphalt" ] +"Roof": "Metal" +"Sewer": "None" +"ShowingRequirements": array:2 [ 0 => "Appointment Only" 1 => "Call Listing Agent" ] +"SpecialListingConditions": array:1 [ 0 => "None" ] +"StateOrProvince": "PR" +"StatusChangeTimestamp": "2025-12-01T00:44:22Z" +"StreetName": "BOSQUE TANAMA" +"StreetNumber": "SR 526" +"SubdivisionName": "TANAMA WARD" +"TaxAnnualAmount": "1500" +"UniversalPropertyId": "US-72001-N-23900000302901-R-N" +"Utilities": "Electricity Connected,Water Connected" +"Vegetation": array:4 [ 0 => "Bamboo" 1 => "Fruit Trees" 2 => "Mature Landscaping" 3 => "Wooded" ] +"View": array:2 [ 0 => "Mountain(s)" 1 => "Trees/Woods" ] +"VirtualTourURLUnbranded": "https://my.matterport.com/show/?m=XKdwhwX7gBx" +"WaterSource": array:1 [ 0 => "Public" ] +"WindowFeatures": array:1 [ 0 => "Wood Frames" ] +"Zoning": "A-G-RES" +"MFR_SDEOYN": "0" +"MFR_FarmType": "Citrus" +"MFR_RoomCount": "9" +"MFR_EscrowState": "FL" +"MFR_WaterViewYN": "0" +"MFR_CurrentPrice": "945000.00" +"MFR_InLawSuiteYN": "0" +"MFR_TotalAcreage": "20 to less than 50" +"MFR_UnitNumberYN": "0" +"MFR_FloodZoneCode": "X" +"MFR_WaterAccessYN": "0" +"MFR_WaterExtrasYN": "0" +"MFR_Association2YN": "0" +"MFR_TotalAnnualFees": "0.00" +"MFR_ExistLseTenantYN": "0" +"MFR_LivingAreaMeters": "140.84" +"MFR_TotalMonthlyFees": "0.00" +"MFR_AttributionContact": "939-478-6028" +"MFR_ListingExclusionYN": "0" +"MFR_PublicRemarksAgent": """ Nestled in the misty, cool mountains of Adjuntas, Bosque Tanama is a 33.45-acre estate where natural beauty and heritage meet opportunity. Home to the highest-scoring coffee ever to come out of Puerto Rico—with an exceptional 92-point badge—this property lies just 49 miles from San Juan and offers a serene mountain retreat with sweeping views, lush forests, fruit trees, and a natural spring-fed pool.\r\n \r\n While the estate is celebrated for its historic, high-quality coffee production, it also features vast open areas ideal for future agricultural ventures or eco-tourism projects. The rolling hills, open landscapes, and rich biodiversity create a peaceful sanctuary that offers a rare combination of tranquility and accessibility.\r\n \r\n At the heart of the estate is a two-level home that blends traditional Puerto Rican Mountain architecture with warm, natural finishes. The upper level, wrapped entirely in wood with high ceilings and exposed beams, includes two bedrooms, a full kitchen, and a wrap-around balcony that seems suspended between sky and mountain. Here, mornings begin with mist drifting over the coffee fields, afternoons glow with golden light, and nights reveal a sky filled with stars that feel within reach.\r\n \r\n The first level offers a practical layout with one bedroom, one bathroom, and a full kitchen, along with direct access to terraces, gardens, and walking paths—ideal for guests, extended family, or potential rental opportunities. Every window frames a different view of the surrounding greenery, coffee fields, and mountains, making it a home that feels intimately connected to its landscape. The home offers a GLA of 1,516 sq ft (1,895 sq ft total).\r\n \r\n A standout feature of Bosque Tanama is its fully licensed, fully equipped coffee processing facility, ready to operate immediately. This prominent facility measures 4,783 sq ft and includes a roaster, huller, depulper, dryer, storage areas, and a covered loading structure—all with permits and certifications in place. The heritage and proven quality of the farm’s coffee elevate the value of this turnkey operation, making it a rare asset in Puerto Rico’s coffee industry.\r\n \r\n The land has proven agricultural potential, with ample space for fruit trees, cacao, vanilla, or other specialty crops, as well as walkable internal roads and open areas perfect for future development.\r\n \r\n Bosque Tanama is more than a property; it’s a lifestyle. Known as “The Switzerland of Puerto Rico,” Adjuntas offers a cool, temperate climate, hiking trails, waterfalls, artisan coffee shops, and vibrant local culture. Despite its peaceful isolation, the estate is just a short drive from San Juan, combining seclusion with convenience.\r\n \r\n Every sunrise over the misty fields, every golden sunset on the balcony, and every star-filled night reflects the estate’s magic, making it a rare canvas for private living, hospitality projects, or reviving Puerto Rico’s storied coffee tradition. With its two-level mountain home, fertile land, breathtaking natural surroundings, and internationally recognized 92-point coffee heritage, Bosque Tanama is a unique opportunity to embrace mountain living while exploring the full potential of one of Puerto Rico’s most beautiful and productive landscapes. """ +"MFR_AvailableForLeaseYN": "0" +"MFR_LotSizeSquareMeters": "135384" +"MFR_WaterfrontFeetTotal": "0" +"MFR_SellerRepresentation": "Single Agent" +"MFR_GreenVerificationCount": "0" +"MFR_OriginatingSystemName_": "Stellar MLS" +"MFR_GreenEnergyGenerationYN": "0" +"MFR_BuildingAreaTotalSrchSqM": "176.05" +"MFR_VirtualTourURLUnbranded2": "https://my.matterport.com/show/?m=jTFNDCPGCC7" +"MFR_ListOfficeContactPreferred": "939-478-6028" +"MFR_ListOfficeHeadOfficeKeyNumeric": "571428148" +"MFR_CalculatedListPriceByCalculatedSqFt": "623.35" +"MFR_RATIO_CurrentPrice_By_CalculatedSqFt": "623.35" +"@odata.id": "https://api.realtyfeed.com/realtyfeed/odata/Property('MFR776154142')" +"provider_name": "Stellar" +"Media": array:33 [ 0 => array:12 [ "Order" => 0 "MediaKey" => "692ce5333bac81440e6f0bda" "MediaURL" => "https://cdn.realtyfeed.com/cdn/15/MFR776154142/fa5be345137fc30b17c4c3cbf0c3dee8.webp" "MediaSize" => 582732 "MediaType" => "webp" "Thumbnail" => "https://cdn.realtyfeed.com/cdn/15/MFR776154142/thumbnail-fa5be345137fc30b17c4c3cbf0c3dee8.webp" "ImageWidth" => 1600 "Permission" => array:1 [ 0 => "Public" ] "ImageHeight" => 1200 "ResourceRecordKey" => "MFR776154142" "ImageSizeDescription" => "1600x1200" "MediaModificationTimestamp" => "2025-12-01T00:45:39.561Z" ] 1 => array:12 [ "Order" => 1 "MediaKey" => "692ce5333bac81440e6f0bdb" "MediaURL" => "https://cdn.realtyfeed.com/cdn/15/MFR776154142/3846816e2b70b29d65ac9c2f86d76b27.webp" "MediaSize" => 553668 "MediaType" => "webp" "Thumbnail" => "https://cdn.realtyfeed.com/cdn/15/MFR776154142/thumbnail-3846816e2b70b29d65ac9c2f86d76b27.webp" "ImageWidth" => 1600 "Permission" => array:1 [ 0 => "Public" ] "ImageHeight" => 1200 "ResourceRecordKey" => "MFR776154142" "ImageSizeDescription" => "1600x1200" "MediaModificationTimestamp" => "2025-12-01T00:45:39.537Z" ] 2 => array:12 [ "Order" => 2 "MediaKey" => "692ce5333bac81440e6f0bdc" "MediaURL" => "https://cdn.realtyfeed.com/cdn/15/MFR776154142/9fcf7577701400630ddb567254ed47cf.webp" "MediaSize" => 399555 "MediaType" => "webp" "Thumbnail" => "https://cdn.realtyfeed.com/cdn/15/MFR776154142/thumbnail-9fcf7577701400630ddb567254ed47cf.webp" "ImageWidth" => 1600 "Permission" => array:1 [ 0 => "Public" ] "ImageHeight" => 1200 "ResourceRecordKey" => "MFR776154142" "ImageSizeDescription" => "1600x1200" "MediaModificationTimestamp" => "2025-12-01T00:45:39.554Z" ] 3 => array:12 [ "Order" => 3 "MediaKey" => "692ce5333bac81440e6f0bdd" "MediaURL" => "https://cdn.realtyfeed.com/cdn/15/MFR776154142/b57d17a6f3207ff08a744c4017f4ef3e.webp" "MediaSize" => 386372 "MediaType" => "webp" "Thumbnail" => "https://cdn.realtyfeed.com/cdn/15/MFR776154142/thumbnail-b57d17a6f3207ff08a744c4017f4ef3e.webp" "ImageWidth" => 1599 "Permission" => array:1 [ 0 => "Public" ] "ImageHeight" => 1199 "ResourceRecordKey" => "MFR776154142" "ImageSizeDescription" => "1599x1199" "MediaModificationTimestamp" => "2025-12-01T00:45:39.553Z" ] 4 => array:12 [ "Order" => 4 "MediaKey" => "692ce5333bac81440e6f0bde" "MediaURL" => "https://cdn.realtyfeed.com/cdn/15/MFR776154142/0776bb05473092dadfb28b31629f4c84.webp" "MediaSize" => 386835 "MediaType" => "webp" "Thumbnail" => "https://cdn.realtyfeed.com/cdn/15/MFR776154142/thumbnail-0776bb05473092dadfb28b31629f4c84.webp" "ImageWidth" => 1502 "Permission" => array:1 [ 0 => "Public" ] "ImageHeight" => 1200 "ResourceRecordKey" => "MFR776154142" "ImageSizeDescription" => "1502x1200" "MediaModificationTimestamp" => "2025-12-01T00:45:39.548Z" ] 5 => array:12 [ "Order" => 5 "MediaKey" => "692ce5333bac81440e6f0be0" "MediaURL" => "https://cdn.realtyfeed.com/cdn/15/MFR776154142/4a74307cea6606411d604ce65f1d33b3.webp" "MediaSize" => 309569 "MediaType" => "webp" "Thumbnail" => "https://cdn.realtyfeed.com/cdn/15/MFR776154142/thumbnail-4a74307cea6606411d604ce65f1d33b3.webp" "ImageWidth" => 1600 "Permission" => array:1 [ 0 => "Public" ] "ImageHeight" => 899 "ResourceRecordKey" => "MFR776154142" "ImageSizeDescription" => "1600x899" "MediaModificationTimestamp" => "2025-12-01T00:45:39.550Z" ] 6 => array:12 [ "Order" => 6 "MediaKey" => "692ce5333bac81440e6f0be1" "MediaURL" => "https://cdn.realtyfeed.com/cdn/15/MFR776154142/e508f733b1fcc062bff6465589f26745.webp" "MediaSize" => 354335 "MediaType" => "webp" "Thumbnail" => "https://cdn.realtyfeed.com/cdn/15/MFR776154142/thumbnail-e508f733b1fcc062bff6465589f26745.webp" "ImageWidth" => 1600 "Permission" => array:1 [ 0 => "Public" ] "ImageHeight" => 1065 "ResourceRecordKey" => "MFR776154142" "ImageSizeDescription" => "1600x1065" "MediaModificationTimestamp" => "2025-12-01T00:45:39.548Z" ] 7 => array:12 [ "Order" => 7 "MediaKey" => "692ce5333bac81440e6f0be2" "MediaURL" => "https://cdn.realtyfeed.com/cdn/15/MFR776154142/60f3b8c33f591c5e8016872d618233b9.webp" "MediaSize" => 372750 "MediaType" => "webp" "Thumbnail" => "https://cdn.realtyfeed.com/cdn/15/MFR776154142/thumbnail-60f3b8c33f591c5e8016872d618233b9.webp" "ImageWidth" => 1600 "Permission" => array:1 [ 0 => "Public" ] "ImageHeight" => 1200 "ResourceRecordKey" => "MFR776154142" "ImageSizeDescription" => "1600x1200" "MediaModificationTimestamp" => "2025-12-01T00:45:39.559Z" ] 8 => array:12 [ "Order" => 8 "MediaKey" => "692ce5333bac81440e6f0be3" "MediaURL" => "https://cdn.realtyfeed.com/cdn/15/MFR776154142/c550754e389c33bb0df8dd6c057db740.webp" "MediaSize" => 322118 "MediaType" => "webp" "Thumbnail" => "https://cdn.realtyfeed.com/cdn/15/MFR776154142/thumbnail-c550754e389c33bb0df8dd6c057db740.webp" "ImageWidth" => 1600 "Permission" => array:1 [ 0 => "Public" ] "ImageHeight" => 1200 "ResourceRecordKey" => "MFR776154142" "ImageSizeDescription" => "1600x1200" "MediaModificationTimestamp" => "2025-12-01T00:45:39.528Z" ] 9 => array:12 [ "Order" => 9 "MediaKey" => "692ce5333bac81440e6f0be4" "MediaURL" => "https://cdn.realtyfeed.com/cdn/15/MFR776154142/e9604685b2962e602efeaf3c308c0cb4.webp" "MediaSize" => 339066 "MediaType" => "webp" "Thumbnail" => "https://cdn.realtyfeed.com/cdn/15/MFR776154142/thumbnail-e9604685b2962e602efeaf3c308c0cb4.webp" "ImageWidth" => 1600 "Permission" => array:1 [ 0 => "Public" ] "ImageHeight" => 1200 "ResourceRecordKey" => "MFR776154142" "ImageSizeDescription" => "1600x1200" "MediaModificationTimestamp" => "2025-12-01T00:45:39.553Z" ] 10 => array:12 [ "Order" => 10 "MediaKey" => "692ce5333bac81440e6f0be5" "MediaURL" => "https://cdn.realtyfeed.com/cdn/15/MFR776154142/523cd06d4932685560442e3c0f304257.webp" "MediaSize" => 272017 "MediaType" => "webp" "Thumbnail" => "https://cdn.realtyfeed.com/cdn/15/MFR776154142/thumbnail-523cd06d4932685560442e3c0f304257.webp" "ImageWidth" => 1600 "Permission" => array:1 [ 0 => "Public" ] "ImageHeight" => 1066 "ResourceRecordKey" => "MFR776154142" "ImageSizeDescription" => "1600x1066" "MediaModificationTimestamp" => "2025-12-01T00:45:39.545Z" ] 11 => array:12 [ "Order" => 11 "MediaKey" => "692ce5333bac81440e6f0be6" "MediaURL" => "https://cdn.realtyfeed.com/cdn/15/MFR776154142/e6bf0e454328e2d3601d5486755f82b4.webp" "MediaSize" => 156481 "MediaType" => "webp" "Thumbnail" => "https://cdn.realtyfeed.com/cdn/15/MFR776154142/thumbnail-e6bf0e454328e2d3601d5486755f82b4.webp" "ImageWidth" => 900 "Permission" => array:1 [ 0 => "Public" ] "ImageHeight" => 1200 "ResourceRecordKey" => "MFR776154142" "ImageSizeDescription" => "900x1200" "MediaModificationTimestamp" => "2025-12-01T00:45:39.510Z" ] 12 => array:12 [ "Order" => 12 "MediaKey" => "692ce5333bac81440e6f0be7" "MediaURL" => "https://cdn.realtyfeed.com/cdn/15/MFR776154142/9d9f9ea65a1159227fef83a65d964a7b.webp" "MediaSize" => 102573 "MediaType" => "webp" "Thumbnail" => "https://cdn.realtyfeed.com/cdn/15/MFR776154142/thumbnail-9d9f9ea65a1159227fef83a65d964a7b.webp" "ImageWidth" => 900 "Permission" => array:1 [ 0 => "Public" ] "ImageHeight" => 1200 "ResourceRecordKey" => "MFR776154142" "ImageSizeDescription" => "900x1200" "MediaModificationTimestamp" => "2025-12-01T00:45:39.509Z" ] 13 => array:12 [ "Order" => 13 "MediaKey" => "692ce5333bac81440e6f0be8" "MediaURL" => "https://cdn.realtyfeed.com/cdn/15/MFR776154142/6d831d1826b38e7c8540254b049d2987.webp" "MediaSize" => 166114 "MediaType" => "webp" "Thumbnail" => "https://cdn.realtyfeed.com/cdn/15/MFR776154142/thumbnail-6d831d1826b38e7c8540254b049d2987.webp" "ImageWidth" => 900 "Permission" => array:1 [ 0 => "Public" ] "ImageHeight" => 1200 "ResourceRecordKey" => "MFR776154142" "ImageSizeDescription" => "900x1200" "MediaModificationTimestamp" => "2025-12-01T00:45:39.528Z" ] 14 => array:12 [ "Order" => 14 "MediaKey" => "692ce5333bac81440e6f0be9" "MediaURL" => "https://cdn.realtyfeed.com/cdn/15/MFR776154142/b79fc0f0156b7fe28af8caa8f3f212d8.webp" "MediaSize" => 115907 "MediaType" => "webp" "Thumbnail" => "https://cdn.realtyfeed.com/cdn/15/MFR776154142/thumbnail-b79fc0f0156b7fe28af8caa8f3f212d8.webp" "ImageWidth" => 900 "Permission" => array:1 [ 0 => "Public" ] "ImageHeight" => 1200 "ResourceRecordKey" => "MFR776154142" "ImageSizeDescription" => "900x1200" "MediaModificationTimestamp" => "2025-12-01T00:45:39.545Z" ] 15 => array:12 [ "Order" => 15 "MediaKey" => "692cedd215188e3bae3d5941" "MediaURL" => "https://cdn.realtyfeed.com/cdn/15/MFR776154142/eca9e0f12747bfc3cfa455de8b9e337e.webp" "MediaSize" => 188183 "MediaType" => "webp" "Thumbnail" => "https://cdn.realtyfeed.com/cdn/15/MFR776154142/thumbnail-eca9e0f12747bfc3cfa455de8b9e337e.webp" "ImageWidth" => 900 "Permission" => array:1 [ 0 => "Public" ] "ImageHeight" => 1200 "ResourceRecordKey" => "MFR776154142" "ImageSizeDescription" => "900x1200" "MediaModificationTimestamp" => "2025-12-01T01:22:26.553Z" ] 16 => array:12 [ "Order" => 16 "MediaKey" => "692ce5333bac81440e6f0bea" "MediaURL" => "https://cdn.realtyfeed.com/cdn/15/MFR776154142/20c78b9da43caf6eace1f50fbf38c47e.webp" "MediaSize" => 290519 "MediaType" => "webp" "Thumbnail" => "https://cdn.realtyfeed.com/cdn/15/MFR776154142/thumbnail-20c78b9da43caf6eace1f50fbf38c47e.webp" "ImageWidth" => 1600 "Permission" => array:1 [ 0 => "Public" ] "ImageHeight" => 1200 "ResourceRecordKey" => "MFR776154142" "ImageSizeDescription" => "1600x1200" "MediaModificationTimestamp" => "2025-12-01T00:45:39.510Z" ] 17 => array:12 [ "Order" => 17 "MediaKey" => "692cedd215188e3bae3d5942" "MediaURL" => "https://cdn.realtyfeed.com/cdn/15/MFR776154142/3a8cd16453aa8823a775308edbc67277.webp" "MediaSize" => 196374 "MediaType" => "webp" "Thumbnail" => "https://cdn.realtyfeed.com/cdn/15/MFR776154142/thumbnail-3a8cd16453aa8823a775308edbc67277.webp" "ImageWidth" => 900 "Permission" => array:1 [ 0 => "Public" ] "ImageHeight" => 1200 "ResourceRecordKey" => "MFR776154142" "ImageSizeDescription" => "900x1200" "MediaModificationTimestamp" => "2025-12-01T01:22:26.553Z" ] 18 => array:12 [ "Order" => 18 "MediaKey" => "692cedd215188e3bae3d5943" "MediaURL" => "https://cdn.realtyfeed.com/cdn/15/MFR776154142/6e0dae4cd518cee6357a2310249c76cf.webp" "MediaSize" => 311916 "MediaType" => "webp" "Thumbnail" => "https://cdn.realtyfeed.com/cdn/15/MFR776154142/thumbnail-6e0dae4cd518cee6357a2310249c76cf.webp" "ImageWidth" => 1600 "Permission" => array:1 [ 0 => "Public" ] "ImageHeight" => 1166 "ResourceRecordKey" => "MFR776154142" "ImageSizeDescription" => "1600x1166" "MediaModificationTimestamp" => "2025-12-01T01:22:26.573Z" ] 19 => array:12 [ "Order" => 19 "MediaKey" => "692ce5333bac81440e6f0bec" "MediaURL" => "https://cdn.realtyfeed.com/cdn/15/MFR776154142/ebe5622c73151878022df07b89803db8.webp" "MediaSize" => 309216 "MediaType" => "webp" "Thumbnail" => "https://cdn.realtyfeed.com/cdn/15/MFR776154142/thumbnail-ebe5622c73151878022df07b89803db8.webp" "ImageWidth" => 1600 "Permission" => array:1 [ 0 => "Public" ] "ImageHeight" => 1200 "ResourceRecordKey" => "MFR776154142" "ImageSizeDescription" => "1600x1200" "MediaModificationTimestamp" => "2025-12-01T00:45:39.510Z" ] 20 => array:12 [ "Order" => 20 "MediaKey" => "692ce5333bac81440e6f0bed" "MediaURL" => "https://cdn.realtyfeed.com/cdn/15/MFR776154142/09b8f60c53b777ea50ad0986582521a0.webp" "MediaSize" => 410691 "MediaType" => "webp" "Thumbnail" => "https://cdn.realtyfeed.com/cdn/15/MFR776154142/thumbnail-09b8f60c53b777ea50ad0986582521a0.webp" "ImageWidth" => 1600 "Permission" => array:1 [ 0 => "Public" ] "ImageHeight" => 1200 "ResourceRecordKey" => "MFR776154142" "ImageSizeDescription" => "1600x1200" "MediaModificationTimestamp" => "2025-12-01T00:45:39.563Z" ] 21 => array:12 [ "Order" => 21 "MediaKey" => "692ce5333bac81440e6f0bee" "MediaURL" => "https://cdn.realtyfeed.com/cdn/15/MFR776154142/3a6df5891052a50a5c7c7fe7cd2d2cb6.webp" "MediaSize" => 281927 "MediaType" => "webp" "Thumbnail" => "https://cdn.realtyfeed.com/cdn/15/MFR776154142/thumbnail-3a6df5891052a50a5c7c7fe7cd2d2cb6.webp" "ImageWidth" => 1600 "Permission" => array:1 [ 0 => "Public" ] "ImageHeight" => 1200 "ResourceRecordKey" => "MFR776154142" "ImageSizeDescription" => "1600x1200" "MediaModificationTimestamp" => "2025-12-01T00:45:39.510Z" ] 22 => array:12 [ "Order" => 22 "MediaKey" => "692ce5333bac81440e6f0bef" "MediaURL" => "https://cdn.realtyfeed.com/cdn/15/MFR776154142/8c8d22c1c9e7765fdbe442cfa4df4d75.webp" "MediaSize" => 263220 "MediaType" => "webp" "Thumbnail" => "https://cdn.realtyfeed.com/cdn/15/MFR776154142/thumbnail-8c8d22c1c9e7765fdbe442cfa4df4d75.webp" "ImageWidth" => 1600 "Permission" => array:1 [ 0 => "Public" ] "ImageHeight" => 1199 "ResourceRecordKey" => "MFR776154142" "ImageSizeDescription" => "1600x1199" "MediaModificationTimestamp" => "2025-12-01T00:45:39.529Z" ] 23 => array:12 [ "Order" => 23 "MediaKey" => "692ce5333bac81440e6f0bf0" "MediaURL" => "https://cdn.realtyfeed.com/cdn/15/MFR776154142/340584bf6b611115033da625da85fc6f.webp" "MediaSize" => 400593 "MediaType" => "webp" "Thumbnail" => "https://cdn.realtyfeed.com/cdn/15/MFR776154142/thumbnail-340584bf6b611115033da625da85fc6f.webp" "ImageWidth" => 1600 "Permission" => array:1 [ 0 => "Public" ] "ImageHeight" => 1200 "ResourceRecordKey" => "MFR776154142" "ImageSizeDescription" => "1600x1200" "MediaModificationTimestamp" => "2025-12-01T00:45:39.554Z" ] 24 => array:12 [ "Order" => 24 "MediaKey" => "692ce5333bac81440e6f0bf1" "MediaURL" => "https://cdn.realtyfeed.com/cdn/15/MFR776154142/66d7657c2c1c6b117e3b702cd79e9a19.webp" "MediaSize" => 312645 "MediaType" => "webp" "Thumbnail" => "https://cdn.realtyfeed.com/cdn/15/MFR776154142/thumbnail-66d7657c2c1c6b117e3b702cd79e9a19.webp" "ImageWidth" => 1600 "Permission" => array:1 [ 0 => "Public" ] "ImageHeight" => 1200 "ResourceRecordKey" => "MFR776154142" "ImageSizeDescription" => "1600x1200" "MediaModificationTimestamp" => "2025-12-01T00:45:39.510Z" ] 25 => array:12 [ "Order" => 25 "MediaKey" => "692ce5333bac81440e6f0bf3" "MediaURL" => "https://cdn.realtyfeed.com/cdn/15/MFR776154142/cbdcd861063efe68d01e89012722fa52.webp" "MediaSize" => 196517 "MediaType" => "webp" "Thumbnail" => "https://cdn.realtyfeed.com/cdn/15/MFR776154142/thumbnail-cbdcd861063efe68d01e89012722fa52.webp" "ImageWidth" => 1600 "Permission" => array:1 [ 0 => "Public" ] "ImageHeight" => 1066 "ResourceRecordKey" => "MFR776154142" "ImageSizeDescription" => "1600x1066" "MediaModificationTimestamp" => "2025-12-01T00:45:39.510Z" ] 26 => array:12 [ "Order" => 26 "MediaKey" => "692cedd215188e3bae3d5944" "MediaURL" => "https://cdn.realtyfeed.com/cdn/15/MFR776154142/a5ae1442fc8b8cf60a5decd5e4ba28ac.webp" "MediaSize" => 318154 "MediaType" => "webp" "Thumbnail" => "https://cdn.realtyfeed.com/cdn/15/MFR776154142/thumbnail-a5ae1442fc8b8cf60a5decd5e4ba28ac.webp" "ImageWidth" => 1600 "Permission" => array:1 [ 0 => "Public" ] "ImageHeight" => 1200 "ResourceRecordKey" => "MFR776154142" "ImageSizeDescription" => "1600x1200" "MediaModificationTimestamp" => "2025-12-01T01:22:26.598Z" ] 27 => array:12 [ "Order" => 27 "MediaKey" => "692cedd215188e3bae3d5945" "MediaURL" => "https://cdn.realtyfeed.com/cdn/15/MFR776154142/48f017cd67a5900541ecac09d430f122.webp" "MediaSize" => 491452 "MediaType" => "webp" "Thumbnail" => "https://cdn.realtyfeed.com/cdn/15/MFR776154142/thumbnail-48f017cd67a5900541ecac09d430f122.webp" "ImageWidth" => 1600 "Permission" => array:1 [ 0 => "Public" ] "ImageHeight" => 1200 "ResourceRecordKey" => "MFR776154142" "ImageSizeDescription" => "1600x1200" "MediaModificationTimestamp" => "2025-12-01T01:22:26.630Z" ] 28 => array:12 [ "Order" => 28 "MediaKey" => "692ce5333bac81440e6f0bf3" "MediaURL" => "https://cdn.realtyfeed.com/cdn/15/MFR776154142/7436524277db65653c25b7bd7417d147.webp" "MediaSize" => 196517 "MediaType" => "webp" "Thumbnail" => "https://cdn.realtyfeed.com/cdn/15/MFR776154142/thumbnail-7436524277db65653c25b7bd7417d147.webp" "ImageWidth" => 1600 "Permission" => array:1 [ 0 => "Public" ] "ImageHeight" => 1066 "ResourceRecordKey" => "MFR776154142" "ImageSizeDescription" => "1600x1066" "MediaModificationTimestamp" => "2025-12-01T00:45:39.510Z" ] 29 => array:12 [ "Order" => 29 "MediaKey" => "692ce5333bac81440e6f0bf4" "MediaURL" => "https://cdn.realtyfeed.com/cdn/15/MFR776154142/3d8d77f313f905e12f87baf62d68229a.webp" "MediaSize" => 56384 "MediaType" => "webp" "Thumbnail" => "https://cdn.realtyfeed.com/cdn/15/MFR776154142/thumbnail-3d8d77f313f905e12f87baf62d68229a.webp" "ImageWidth" => 1600 "Permission" => array:1 [ 0 => "Public" ] "ImageHeight" => 1130 "ResourceRecordKey" => "MFR776154142" "ImageSizeDescription" => "1600x1130" "MediaModificationTimestamp" => "2025-12-01T00:45:39.564Z" ] 30 => array:12 [ "Order" => 30 "MediaKey" => "692ce5333bac81440e6f0bf5" "MediaURL" => "https://cdn.realtyfeed.com/cdn/15/MFR776154142/020da983d2e889e53ea2627b1bc84fdf.webp" "MediaSize" => 66419 "MediaType" => "webp" "Thumbnail" => "https://cdn.realtyfeed.com/cdn/15/MFR776154142/thumbnail-020da983d2e889e53ea2627b1bc84fdf.webp" "ImageWidth" => 1600 "Permission" => array:1 [ 0 => "Public" ] "ImageHeight" => 1130 "ResourceRecordKey" => "MFR776154142" "ImageSizeDescription" => "1600x1130" "MediaModificationTimestamp" => "2025-12-01T00:45:39.546Z" ] 31 => array:12 [ "Order" => 31 "MediaKey" => "692d9a88e2b45a2b1d154993" "MediaURL" => "https://cdn.realtyfeed.com/cdn/15/MFR776154142/5d9b8622736cfd655efc4895cdbfd745.webp" "MediaSize" => 68828 "MediaType" => "webp" "Thumbnail" => "https://cdn.realtyfeed.com/cdn/15/MFR776154142/thumbnail-5d9b8622736cfd655efc4895cdbfd745.webp" "ImageWidth" => 1600 "Permission" => array:1 [ 0 => "Public" ] "ImageHeight" => 1130 "ResourceRecordKey" => "MFR776154142" "ImageSizeDescription" => "1600x1130" "MediaModificationTimestamp" => "2025-12-01T13:39:20.308Z" ] 32 => array:12 [ "Order" => 32 "MediaKey" => "692d9a88e2b45a2b1d154994" "MediaURL" => "https://cdn.realtyfeed.com/cdn/15/MFR776154142/7e254da2a51a9c0fabc76a687e3976eb.webp" "MediaSize" => 63095 "MediaType" => "webp" "Thumbnail" => "https://cdn.realtyfeed.com/cdn/15/MFR776154142/thumbnail-7e254da2a51a9c0fabc76a687e3976eb.webp" "ImageWidth" => 1600 "Permission" => array:1 [ 0 => "Public" ] "ImageHeight" => 1130 "ResourceRecordKey" => "MFR776154142" "ImageSizeDescription" => "1600x1130" "MediaModificationTimestamp" => "2025-12-01T13:39:20.346Z" ] ] +"ID": "506003" } ] +success: true +page_size: 1 +page_count: 1 +count: 1 +after_key: "" } "RF Response Time" => "0.22 seconds" ] "RF Query: /Property?$select=ALL&$orderby=ModificationTimestamp DESC&$top=4&$filter=((StandardStatus eq 'Active' and StateOrProvince eq 'PR' and PropertyType in ('Residential', 'Residential Income', 'Land', 'Business Opportunity', 'Commercial Sale') and ListPrice ge 300000) OR ( StandardStatus eq 'Active' and StateOrProvince eq 'PR' and PropertyType in ('Residential Lease', 'Commercial Lease' ) and ListPrice ge 3000)) and (PropertyType eq 'Residential') AND PropertySubType eq 'Farm' AND InternetEntireListingDisplayYN eq true&$feature=ListAgentMlsId in ('743575075','')&$expand=Media&$count=true" => array:2 [ "RF Response" => Realtyna\MlsOnTheFly\Components\CloudPost\SubComponents\RFClient\SDK\RF\RFResponse {#4622 +items: [] +success: true +page_size: 0 +page_count: 0 +count: 0 +after_key: "" } "RF Response Time" => "0.18 seconds" ] ]